物件コード K-320
種目 中古戸建 価格 1,780万円
交通 加太駅 車6分 所在地 和歌山県和歌山市加太字山田西原
土地面積 143.07m2 ( 43.27坪 ) 建物面積 104m2 ( 31.46坪 )
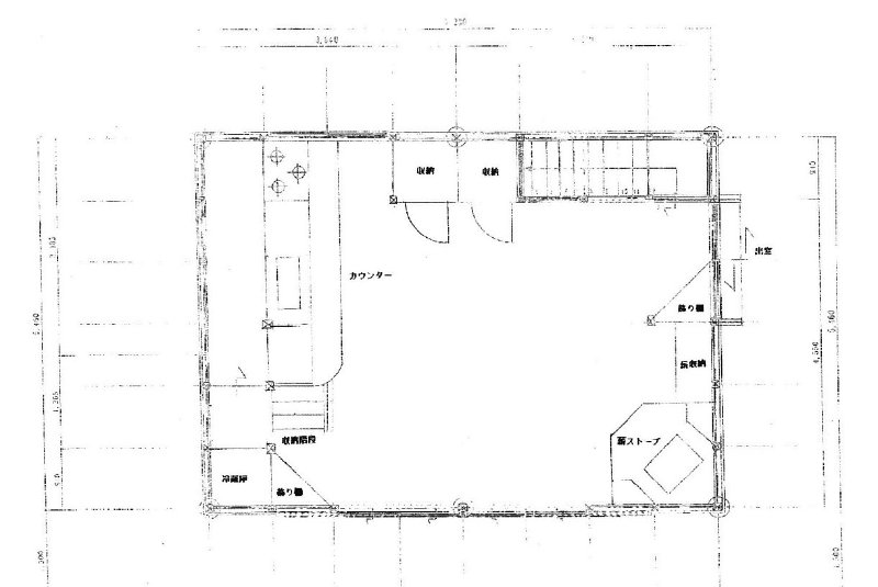
間取 2LDK 間取詳細  
建ぺい率 60% 容積率 200%
構造 木造 地目 宅地
土地権利 所有権 用途地域 無指定
取引態様   築年月 H16/07
引渡時期 相談 私道面積  
借地料   接道 北 6m(幅員) 開発道路
南 4m(幅員)
東 4m(幅員)
学区  
特色 素晴らしい建物です。建築主様は30年間工務店を営んでこられ、幾多の建築物を竣工してきたのですが、施主様が求めるものとご自身が建てたい家の差がどうしても生じるので、自分の思うような建物を海の眺望が良い土地に建築したいという思いのたけを盛り込んで、思い描いていたイメージのこの地に別荘をたてて15年間存分に楽しんでまいりました。しかしながら齢70を前にして、建物の状態が良い間に次の方にお譲りして大事にお使いいただければということで現在のオーナー様への売却となりました。建物内部は天然素材をふんだんに利用して非常に贅沢に作られており、一言で言えば高級和風旅館のイメージです。お写真にございます通り、別荘ライフで憧れの本格的な薪ストーブや囲炉裏、素敵なバーカウンター、解放感抜群の露天風呂や屋内檜風呂、20人はご利用できる大型ウッドデッキに、こちらにも本格的なピザ窯を設置され、外部流しやデッキ専用冷蔵庫等完備。
詳細
拡大してご覧になれます
 
拡大してご覧になれます
 
拡大してご覧になれます
 
拡大してご覧になれます
 
拡大してご覧になれます
 
拡大してご覧になれます
 
拡大してご覧になれます
 
拡大してご覧になれます
 
拡大してご覧になれます
 
拡大してご覧になれます
 
拡大してご覧になれます
 
拡大してご覧になれます
 
拡大してご覧になれます
 
拡大してご覧になれます
 
拡大してご覧になれます
 
拡大してご覧になれます
 
拡大してご覧になれます
 
拡大してご覧になれます
 
拡大してご覧になれます
 
拡大してご覧になれます
 
拡大してご覧になれます
 
拡大してご覧になれます
 
拡大してご覧になれます
 
掲載されている物件データが現況と異なる場合は現況を優先します